



Купите недвижимость на стадии строительства0%наша комиссия
Опираясь на свое выдающееся наследие, основанное на исключительном гостеприимстве, DAMAC Properties сотрудничает с Radisson Hotel Group, представляя в DAMAC Hills один из ведущих мировых гостиничных брендов, предоставляющих полный спектр услуг.
Поражая с первого взгляда, Radisson Hotel предлагает непревзойденные услуги гостеприимства, созданные для удовлетворения любых ваших амбиций.
Присоединяйтесь к процветающему гостиничному сектору Дубая и обеспечьте себе привлекательный доход за счет инвестиций в гостиничные номера, управляемые исключительно одним из самых престижных мировых брендов. Благодаря прогрессивной политике правительства и развивающимся туристическим направлениям, освобождению от налога на добавленную стоимость (НДС) для иностранных гостей, а также ожидаемой выставке Expo 2020, сектор располагает к постоянному росту и благоприятным рыночным условиям.
Radisson Dubai DAMAC Hills - это впечатляющая башня, предоставляющая широкие возможности для отдыха и восстановления сил в кругу семьи и друзей. Посвятите вторую половину дня чашечке ароматного кофе или создайте незабываемые моменты за изысканным ужином - все это дополняется захватывающими панорамными видами из вашего изысканного номера.
Полная облицовка плиткой ванных комнат и смежных помещений. Отделка пола коврами и плиткой в соответствии с архитектурными требованиями.
Полностью оборудованная кухня
Полностью меблированные жилые помещения
DAMAC Hills представляет собой объединение роскошного жилья, премиальных торговых и развлекательных центров, а также великолепных открытых пространств, расцветающих на 42 миллионах квадратных футов зеленых ландшафтов. Особняки, виллы и жилые дома имеют доступ к исключительным торговым и развлекательным объектам, дополненным замечательными открытыми пространствами и обилием зелени, в том числе гольф-клубом Trump International Golf Club Dubai и парком The Park.


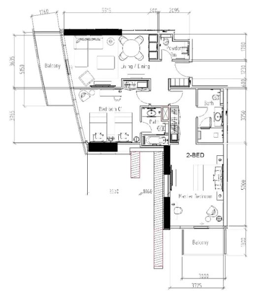
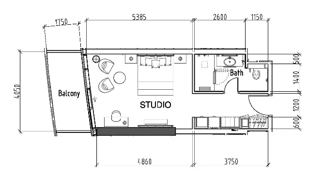
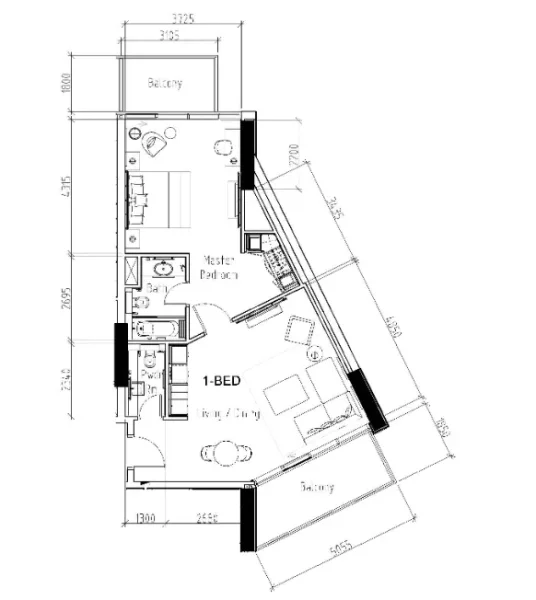
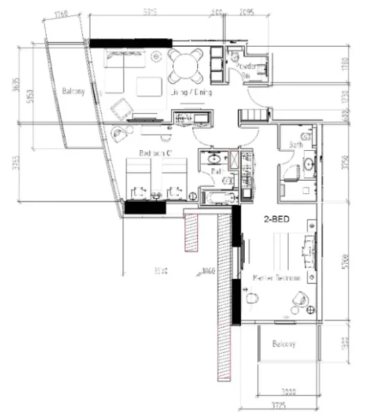
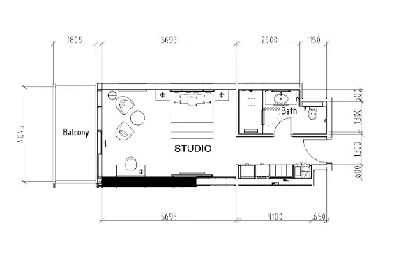
Студии, люксы с 1 и 2 спальнями



Готовы к новому дому? Отправьте нам запрос