




Купите недвижимость на стадии строительства0%наша комиссия
Дубай продолжает свое неустанное восхождение, и Trump International Hotel & Tower Dubai является жемчужиной этого преобразования. Этот архитектурный шедевр, стратегически расположенный вдоль Шейх-Зайед-роуд у ворот Даунтауна Дубая, отражает самую суть бизнеса, культурного отличия и непревзойденного престижа.
Откройте для себя тщательно продуманный сервис, отточенный до абсолютного совершенства в каждом взаимодействии. Каждый элемент продуман до мелочей для взыскательных людей, которые выходят за рамки простого комфорта и стремятся к бескомпромиссному совершенству. Здесь сервис превосходит все ожидания, устанавливая новые стандарты подлинной роскоши. Истинное отличие лежит за пределами обыденности.
Клуб Trump Members-Only Club предлагает эксклюзивное приглашение на исключительный образ жизни, тщательно охраняемый для тех, кто ценит свободу действий, повышенные привилегии и значимые цели. Это выдающееся социальное убежище предлагает продуманный до мелочей опыт - от персонализированных кулинарных путешествий до оздоровительных центров премиум-класса, - который в корне меняет представление об эксклюзивности. В этих стенах утонченная изысканность пронизывает каждую деталь, а каждый опыт дарит вдохновение. Членство в клубе открывает доступ к международной сети выдающихся личностей, которые постоянно стремятся к самым исключительным жизненным ценностям.
Во всех интерьерах тщательно продуманная отделка, тщательно подобранные материалы и обстановка, которая олицетворяет собой изысканное жилое пространство, определяют каждую поверхность.
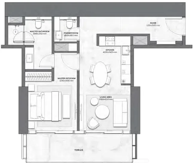
Бытовая техника европейских брендов премиум-класса, включая духовой шкаф, варочную панель/конфорку, вытяжку, холодильник/морозильник, посудомоечную и стиральную машины.
Нет
Trade Centre First, альтернативно называемый Trade Centre 1, представляет собой выдающийся район, расположенный вдоль западного коридора Дубая, вдоль престижной магистрали Sheikh Zayed Road. Эта динамичная зона органично сочетает в себе жилую изысканность и коммерческое превосходство, характеризуясь поразительными современными башнями и исключительным развитием инфраструктуры.
Район простирается от стратегически важной кольцевой транспортной развязки Торгового центра, где Шейх Зайед-роуд пересекается с улицей Аль-Дхияфа, на юг до кольцевой транспортной развязки Обороны. Его границы охватывают Аль-Сатва на севере, Торговый центр 2 на юге, Аль-Васл на западе и Аль-Джафилия на востоке. В Первом торговом центре находятся выдающиеся архитектурные достижения, в том числе отели Fairmont Dubai, Shangri-La Hotel и Four Points by Sheraton. Эти выдающиеся сооружения представляют собой вершины роскошного жилья и первоклассных деловых операций.
Район предлагает всесторонние удобства для жизни, включающие разнообразные столовые, специализированные кафе, супермаркеты премиум-класса, эксклюзивные салоны красоты и современные фитнес-залы. Превосходная инфраструктура общественного транспорта - в частности, метро Дубая - обеспечивает беспрепятственный доступ ко всему мегаполису. Учитывая стратегическую близость к главным достопримечательностям, включая пляж Джумейра и торговый центр Dubai Mall, Trade Centre First представляет собой исключительно привлекательное предложение как для взыскательных жителей, так и для проницательных инвесторов. В этом районе мастерски сочетаются динамичная энергия мегаполиса с изысканностью и удобством современной жизни в элитном районе.


Апартаменты с 2, 3 спальнями и пентхаусы с 4 спальнями








Готовы к новому дому? Отправьте нам запрос