






Купите недвижимость на стадии строительства0%наша комиссия
Величественно возвышаясь над культовым горизонтом Дубая, башня Al Habtoor Tower является новой жемчужиной города Al Habtoor City. Расположенная в самом престижном районе города вдоль набережной Дубайского водного канала, эта необыкновенная башня обеспечивает непревзойденную жилую роскошь в рамках всеобъемлющей среды образа жизни с великолепными панорамными видами как на городские пейзажи, так и на морские горизонты.
Не ограничиваясь предоставлением изысканных жилых помещений, башня Al Habtoor Tower создает целую вселенную изысканности - возвышающееся святилище, где премиальный стиль жизни достигает беспрецедентных высот. В этом архитектурном чуде органично сочетаются передовые оздоровительные комплексы и впечатляющие бассейны-инфинити, которые словно парят в воздухе, с просторными апартаментами, из которых открываются захватывающие виды на знаменитый горизонт Дубая, устанавливая новые стандарты современной городской жизни.
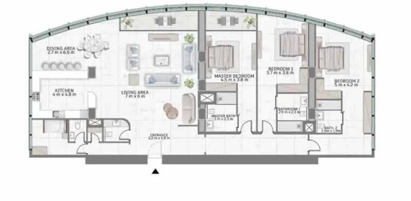
Резиденции в башне Al Habtoor Tower включают в себя конфигурации от одной до трех спален. На каждом уровне представлены уникальные планировки, жилые площади которых варьируются от 78 до 219 м². В каждой квартире есть один или несколько частных балконов. Жилые помещения башни полностью готовы к немедленному заселению и имеют современную отделку, выполненную из высококачественных материалов. Панорамные окна обрамляют захватывающие виды на набережную Дубайского канала и легендарную башню Бурдж-Халифа. Во всем здании жильцы могут наслаждаться беспрепятственной вертикальной транспортировкой с помощью 18 скоростных лифтов.
Каждая резиденция оснащена полностью оборудованными ванными комнатами и кухнями, включая все необходимые светильники и современную бытовую технику.
Нет
Al Habtoor City - это выдающийся многофункциональный комплекс, в котором жилая недвижимость органично сочетается с гостиничным и развлекательным бизнесом мирового класса. Стратегически расположенный вдоль улицы Шейха Зайеда, этот комплекс находится в непосредственной близости от Дубайского водного канала и оживленного центра города.
В центре развлекательного ландшафта Al Habtoor City находится La Perle by Dragone - исключительная театральная площадка, представляющая необыкновенное водное и акробатическое зрелище, задуманное знаменитым режиссером Франко Драгоне. В этой увлекательной постановке сочетаются захватывающие дух представления, драматические водные сцены и художественное мастерство. Помимо развлекательных аттракционов, Al Habtoor City включает в себя впечатляющую коллекцию кулинарных ресторанов, торговых заведений и мест для отдыха. Жители и гости города могут познакомиться с эклектичным гастрономическим ландшафтом, в котором представлены мировые кухни и рестораны премиум-класса. Жемчужиной комплекса является элегантная набережная, протянувшаяся вдоль Дубайского водного канала и создающая идиллический фон для живописных прогулок и отдыха на свежем воздухе.


Апартаменты с 1, 2 и 3 спальнями







Готовы к новому дому? Отправьте нам запрос