




Купите недвижимость на стадии строительства0%наша комиссия
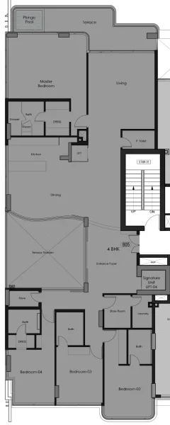
Bonds Avenue - это престижный жилой комплекс с впечатляющим выбором высококлассных жилых помещений, отвечающих самым разным предпочтениям. Проект включает в себя апартаменты с 1, 2 и 3 спальнями, а также просторные таунхаусы с 3 спальнями и великолепные пентхаусы с 4 спальнями, каждый из которых оснащен частным бассейном. Каждая квартира была тщательно продумана, чтобы обеспечить изысканность, комфорт и потрясающие панорамные виды.
Жители Bonds Avenue пользуются обширным набором удобств премиум-класса, которые повышают уровень повседневной жизни. Погрузитесь в захватывающий бассейн-инфинити, поддерживайте свой фитнес-режим в ультрасовременном тренажерном зале или наслаждайтесь развлечениями в кинотеатре под открытым небом. В комплексе также есть выделенная беговая дорожка, корт для паддл-тенниса и детская игровая площадка под присмотром, что обеспечивает возможности для отдыха для всех возрастов.
Благодаря своему исключительному расположению и первоклассным удобствам Bonds Avenue представляет собой идеальное место для проживания. Комплекс предлагает непревзойденный стиль жизни, характеризующийся высочайшим комфортом и доступностью. Расслабляясь в личном бассейне или участвуя в динамичной жизни сообщества, Bonds Avenue выходит за рамки традиционного жилья - он воплощает в себе изысканную современную жизнь.
Современная архитектурная эстетика, дополненная материалами премиум-класса, включая напольные покрытия из керамогранита, эмульсионные краски Fenomastic, окна с двойным остеклением в алюминиевых рамах и гранитные кухонные поверхности. Передовая интеграция технологий "умного дома".
Полностью оборудованные кухни с высококлассной бытовой техникой BOSCH.
Частично меблированные квартиры.
Dubai Islands представляет собой новаторский проект, который отражает фирменную роскошь и дальновидность Дубая. Этот необычный проект, стратегически расположенный вдоль береговой линии, включает в себя пять искусственно созданных островов, мастерски спроектированных для интеграции жилой, коммерческой и рекреационной среды. Каждый остров был продуман до мелочей, чтобы обеспечить особый стиль жизни, окруженный нетронутыми берегами, зеленью и прозрачными лазурными водами.
Комплексные инфраструктурные сети соединяют острова с материковой частью Дубая, обеспечивая удобное сообщение по всему мегаполису. Благодаря такому исключительному расположению жители и гости могут наслаждаться спокойной островной жизнью, сохраняя при этом близость к динамичным центрам Дубая, включая такие известные места и энергичные районы, как Даунтаун Дубай, Дубай Марина и Палм Джумейра. Комплекс включает в себя многочисленные объекты премиум-класса, в том числе роскошные гостиничные комплексы, изысканные рестораны, эксклюзивные торговые центры и превосходные возможности для отдыха.
Дубайские острова отвечают самым разным предпочтениям в образе жизни, охватывая спокойные жилые кварталы и оживленные развлекательные районы. В проекте уделяется большое внимание экологической ответственности и технологическому прогрессу, внедряются устойчивые методы строительства и инновационные системы для создания сбалансированного и экологически сознательного сообщества. Благодаря удивительному природному великолепию, выдающимся удобствам и стратегическому расположению Dubai Islands становится идеальным местом для тех, кто стремится к необычному образу жизни в одном из самых прогрессивных мегаполисов мира.


Апартаменты с 1, 2, 3 спальнями с бассейном, таунхаусы с 3 спальнями с бассейном и пентхаусы с 4 спальнями с бассейном






Готовы к новому дому? Отправьте нам запрос