


Купите недвижимость на стадии строительства0%наша комиссия
Оцените элегантность Celia Gardens, исключительного жилого проекта, разработанного компанией Abou Eid Real Estate и стратегически расположенного в желанном районе Nad Al Sheba Gardens в Дубае. В этом выдающемся проекте современный дизайн органично сочетается с умиротворяющими природными ландшафтами, обеспечивая жителям оазис спокойствия при сохранении отличной транспортной доступности.
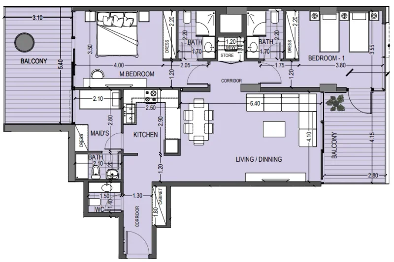
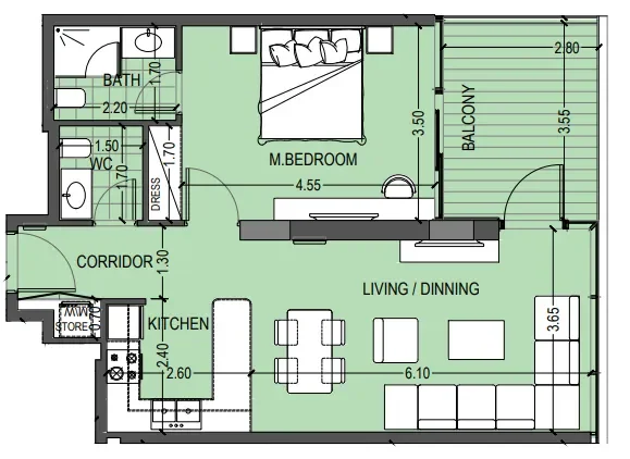
Комплекс состоит из одного тщательно спланированного здания, в котором разместились 45 тщательно продуманных резиденций, включающих 25 квартир с одной спальней и 20 квартир с двумя спальнями. В каждом доме представлены просторные планировки с первоклассной отделкой, окнами от пола до потолка и современными кухнями открытой концепции, оснащенными самой современной техникой. Философия дизайна интерьера подчеркивает естественное освещение, в результате чего жилые помещения во всех квартирах светлые и уютные.
Жители Celia Gardens могут пользоваться впечатляющей коллекцией первоклассных удобств, созданных для того, чтобы сделать повседневную жизнь более комфортной. Здесь есть бассейн, специальные места для занятий йогой, полностью оборудованный тренажерный зал, беговые дорожки, детские игровые площадки и места для отдыха, включая теннисные корты. Для улучшения самочувствия и вовлечения в жизнь общества в проекте предусмотрены спа-услуги, сауны, места для спокойной медитации, кинозал под открытым небом и специально отведенные зоны для гриля. Круглосуточная охрана и профессиональные консьержи гарантируют безопасность и удобство жителей.
Современная отделка с использованием материалов премиум-класса.
Полностью оборудованные кухни.
Частично меблированы.
Nad Al Sheba 1 представляет собой один из самых выдающихся жилых районов Дубая, который славится своим спокойным характером и стратегическим расположением рядом с важными городскими достопримечательностями. Этот эксклюзивный район предлагает изысканную жизнь с утонченными виллами и безупречно ухоженными улицами, окаймленными обильным ландшафтным дизайном. Выгодное расположение района позволяет без труда добраться до центра Дубая, Мейдана и других престижных районов города.
Район ориентирован на семьи и профессионалов, стремящихся к уединению, изысканности и высокому уровню жизни. В Nad Al Sheba 1 представлены просторные виллы с первоклассным архитектурным дизайном и частными открытыми пространствами, создающие идеальный фон для безмятежной семейной жизни. В генеральном плане района приоритетом является спокойствие, дополненное тщательно продуманными парками отдыха и пешеходными дорожками.
Помимо спокойного жилого характера, Nad Al Sheba 1 обеспечивает беспрепятственный доступ к комплексным услугам, включающим образовательные учреждения, медицинские центры и торговые центры. Близость к Мейдану позволяет жителям наслаждаться исключительными кулинарными предложениями, развлекательными мероприятиями и главными спортивными достопримечательностями. Благодаря уникальному сочетанию эксклюзивности, изысканности и доступности Nad Al Sheba 1 становится одним из самых востребованных жилых районов Дубая.


Апартаменты с 1 и 2 спальнями

Готовы к новому дому? Отправьте нам запрос