


Купите недвижимость на стадии строительства0%наша комиссия
Откройте для себя Enaya Residences - исключительный комплекс, где изысканная жизнь гармонично сочетается с удобством мегаполиса. Созданный в соответствии с изысканными предпочтениями современных горожан, этот выдающийся объект недвижимости представляет собой коллекцию тщательно спроектированных резиденций, демонстрирующих конфигурации с 1 и 2 спальнями, каждая из которых дополнена первоклассными удобствами и превосходной отделкой.
Войдя в Enaya Residence, вы попадете в атмосферу, излучающую утонченность и изящество. По прибытии вы обнаружите атмосферу гостеприимного спокойствия, где каждый элемент был тщательно продуман, чтобы сделать ваше путешествие по жилью более комфортным.
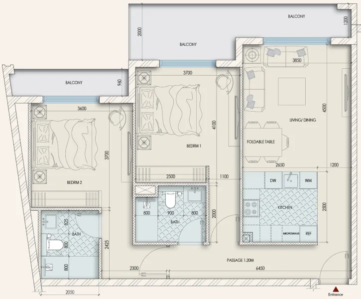
Каждая резиденция в Enaya Residences демонстрирует продуманную планировку, которая оптимизирует как пространственные потоки, так и практическую жизнь, гарантируя максимальную эффективность каждого квадратного фута. От проведения собраний в просторных жилых помещениях до уединения в тихом убежище вашей личной спальни - вы обнаружите, что каждая зона вашей резиденции Enaya Residence ставит во главу угла ваше благополучие и удовлетворение.
Выбор отделочных материалов в резиденциях Enaya - это стремление к совершенству, гарантирующее жильцам непревзойденную роскошь в повседневной жизни. Неизменное стремление к высочайшему мастерству прослеживается в каждом элементе архитектуры и строительства комплекса, создавая жилой опыт, который действительно выделяется на фоне других.
В кухнях и ванных комнатах представлены исключительно премиальные светильники и бытовая техника, которые органично сочетают в себе эстетическую привлекательность и практичность.
Нет
Jumeirah Village Triangle, широко известный как JVT, представляет собой тщательно продуманный мастер-план, ориентированный на семейный отдых жилой анклав, расположенный в центральном районе Дубая, Объединенные Арабские Эмираты. Созданное компанией Nakheel Properties, это уникальное сообщество известно своей характерной треугольной конфигурацией и продуманной планировкой, способствующей созданию спокойной, но динамичной атмосферы для его жителей.
Отличительной чертой Jumeirah Village Triangle является комплексное озеленение и обилие зеленых насаждений. В районе есть прекрасно ухоженные парки, выделенные дорожки для бега и езды на велосипеде, а также спокойные пешеходные маршруты, что делает его идеальным местом для отдыха и расслабляющих прогулок. Богатство ботанической красоты и мест для отдыха способствует созданию спокойной атмосферы, обеспечивая жителям спокойное убежище вдали от городской суеты.
В JVT приоритет отдается коммунальному проживанию и ориентированности на семью. В районе расположены различные торговые заведения, продуктовые магазины и рестораны, что обеспечивает жителям удобный доступ к основным услугам. Кроме того, в Jumeirah Village Triangle находится собственное международное учебное заведение, что делает его привлекательным вариантом для семей с детьми школьного возраста.


Апартаменты с 1 и 2 спальнями

Готовы к новому дому? Отправьте нам запрос