




Купите недвижимость на стадии строительства0%наша комиссия
Апарт-отель AVIATOR представляет собой видение предпринимателя и авиатора Сергея Сулимова. В этом уникальном объекте интерьера, выполненном в авиационном стиле, воплощена атмосфера полета и исключительного комфорта для гостей, желающих отдохнуть от профессиональной деятельности.
Девелопер разработал комплексные стратегии для обеспечения круглогодичной заполняемости. Инвесторы, приобретающие апартаменты для сдачи в аренду, могут рассчитывать на ежегодную прибыль в размере 10-20% от первоначальных капиталовложений.
Этот апарт-отель может похвастаться прочной конструкцией, системами климат-контроля, современными ванными комнатами и кухнями, а также безмятежными видами на улицу. Построенный в соответствии с постоянными строительными стандартами, он устраняет типичные недостатки, присущие обычным индонезийским гостиничным объектам. Гости будут наслаждаться оптимальным комфортом независимо от погодных условий, как сегодня, так и через десятилетие. Застройщик гарантирует постоянный климат-контроль, надежные эксплуатационные системы и изысканные интерьеры с характерными элементами дизайна на авиационную тематику.
Полностью оборудованная кухонная техника
Климат-контроль, телевизор, холодильник, кухонные принадлежности, двуспальная кровать с постельным бельем, столовая посуда и постельное белье, отдельные помещения, бассейн во дворе.
Расположен в элитном месте
Forbes признал Канггу четвертым в мире местом для жизни и инвестиций. Потрясающая красота природы, развитая инфраструктура, поддерживающая постоянное проживание, отдых и удаленную работу, а также процветающее сообщество успешных экспатриантов и цифровых кочевников делают этот район главным местом на Бали. Он служит как излюбленным туристическим направлением, так и коммерческим центром острова.
Берава представляет собой основной район Канггу, где свободные участки под застройку становятся все более дефицитными.
Строительство отеля ведется в сложившемся жилом квартале, окруженном завершенной малоэтажной застройкой. Здесь царит спокойная обстановка, а поблизости не ведется активная строительная деятельность. Океан находится в 10 минутах ходьбы - идеальное расположение, чтобы избежать шума от ночных заведений.
Поблизости находятся медицинские учреждения и аптеки, боулинг, теннисные корты, пекарни, салоны красоты и розничные рынки.


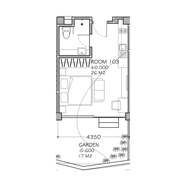
1BR квартира


Готовы к новому дому? Отправьте нам запрос