

Купите недвижимость на стадии строительства0%наша комиссия
Проект AG Ark в Дубайленде является образцовым примером современного жилья, тщательно разработанного компанией AG Properties с неизменным акцентом на роскошь и точность. В этом продуманном проекте представлен широкий выбор жилых помещений, начиная от компактных студий и заканчивая просторными квартирами с одной, двумя и тремя спальнями, продуманными с учетом различных предпочтений в образе жизни и бытовых требований. Каждая резиденция оснащена кухонной техникой премиум-класса и передовыми технологиями "умного дома", обеспечивая жильцам непревзойденное удобство и современные инновации. Изысканная современная архитектура органично сочетается с практичной функциональностью, превращая каждую квартиру в элегантное и комфортное жилое пространство. Такое тщательное внимание к мастерству исполнения демонстрирует неизменную приверженность AG Properties к достижению совершенства во всех аспектах проекта.
AG Ark отличается исключительной коллекцией объектов мирового класса, которые улучшают повседневный опыт жителей. Плавательный бассейн на возвышенности служит спокойным местом отдыха, предоставляя жителям возможность расслабиться, любуясь захватывающими панорамными видами, и дополняется ультрасовременным фитнес-центром, предназначенным для жителей, заботящихся о своем здоровье. Те, кто стремится к спокойствию и хорошему самочувствию, оценят специальную студию йоги, которая предлагает спокойное убежище для релаксации. Для детей и семей предусмотрена специальная детская игровая зона, обеспечивающая безопасную и приятную среду, а также семейные лаунж-пространства, способствующие установлению социальных связей. Отличительный кинотеатр на открытом воздухе обеспечивает исключительные развлечения под открытым небом, а оборудование для барбекю и частные беседки создают идеальные места для проведения встреч с близкими людьми. Эти тщательно продуманные удобства превращают AG Ark из простого жилья во всеобъемлющий образ жизни, способствующий хорошему самочувствию и общению.
Всеобъемлющая философия дизайна и видение, лежащие в основе AG Ark, воплощают инновационный взгляд на современную городскую жизнь. AG Properties мастерски достигла гармоничного баланса между роскошью и функциональностью, что позволило AG Ark стать выдающимся проектом в Дубайленде. Продуманная интеграция объектов для отдыха и развлечений в сочетании с изысканными элементами дизайна обеспечивает исключительные условия проживания для всех жителей. AG Ark устанавливает новые стандарты качества жилья, обеспечивая яркий и изысканный стиль жизни.
Современная отделка с использованием материалов премиум-класса. Системы "умного дома".
Полностью оборудованная кухня с бытовой техникой.
Нет.
Dubailand представляет собой обширный и оживленный район Дубая, органично сочетающий в себе возможности для развлечений, отдыха и проживания. Отличаясь обширной коллекцией достопримечательностей, этот район обслуживает жителей и гостей всех демографических групп благодаря впечатляющему набору всемирно известных мест. В районе расположены исключительные тематические парки, в том числе Dubai Parks and Resorts, где находятся Legoland, Motiongate и Bollywood Parks, обеспечивающие неограниченное количество развлечений для всей семьи. Разнообразные впечатления, полученные в Dubailand, делают его необычным местом назначения, которое дарит радость и счастье в каждом районе сообщества.
Кроме того, этот район предоставляет широкие возможности для поддержания активного образа жизни, предлагая первоклассные объекты, включая поля для гольфа, профессиональные теннисные корты, выделенные велосипедные дорожки и обширные зеленые зоны. Эти возможности для отдыха предназначены для энтузиастов фитнеса и любителей активного отдыха, создавая живую атмосферу, ориентированную на здоровье. Кроме того, Dubailand предлагает разнообразные возможности для шопинга и кулинарии - от шумных торговых центров до высококлассных ресторанов. Будь то магазины международных брендов класса люкс или изысканные рестораны, жильцы могут наслаждаться всеми удобствами в шаговой доступности.
Высокий уровень образования и культурное развитие являются основополагающими столпами Dubailand. Здесь расположено множество учебных заведений, предлагающих разнообразные образовательные программы для учащихся всех возрастных групп. В районе регулярно проводятся культурные праздники, художественные выставки и фестивали, посвященные самобытному наследию района, способствующие культурному взаимопониманию и налаживанию связей между жителями. Стратегическое расположение обеспечивает беспрепятственное сообщение с известными достопримечательностями и коммерческими центрами Дубая через разветвленную сеть основных автомобильных дорог и систем общественного транспорта. Благодаря такому удобному доступу Dubailand становится не только интересным и разнообразным местом для проживания, но и стратегически важным пунктом доступа в мегаполис.


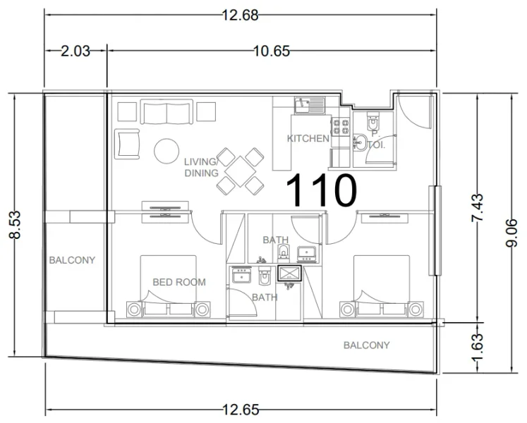
Студии, апартаменты с 1, 2 и 3 спальнями

Готовы к новому дому? Отправьте нам запрос