




Купите недвижимость на стадии строительства0%наша комиссия
Расположенный на острове Аль-Марджан в Рас-эль-Хайме, Manta Bay представляет собой новаторское туристическое направление, которое переосмысливает высококлассную жизнь. Этот проект демонстрирует ультрасовременный фасад, который одновременно подчеркивает природную красоту района и излучает изысканность. Благодаря обширному панорамному остеклению, архитектурный дизайн открывает захватывающие виды, создавая бесшовную связь между жителями и великолепным окружающим ландшафтом.
Экологическая безопасность остается центральным элементом концепции Manta Bay: более 80 % территории комплекса отведено под великолепный ландшафтный дизайн. Генеральный план подчеркивает обилие открытых пространств, создавая атмосферу простора и спокойствия. Кроме того, в каждой резиденции предусмотрена частная терраса, обеспечивающая жильцам эксклюзивный отдых на свежем воздухе.
В комплексе представлена выдающаяся коллекция удобств премиум-класса, призванных улучшить повседневную жизнь жильцов. Среди них - ультрасовременный фитнес-центр, бассейны-инфинити с видом на океан, изысканные рестораны и частные спа-услуги - каждый элемент тщательно подобран для обеспечения исключительного комфорта и роскоши. Экологическая ответственность прослеживается во всем проекте благодаря устойчивым методам строительства и энергосберегающим технологиям, поддерживающим гармонию с нетронутой природой острова Аль-Марджан. Manta Bay выходит за рамки традиционной жилой застройки; он представляет собой тихое убежище, где изысканность и природа сходятся в идеальной гармонии.
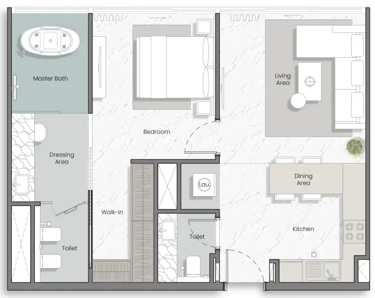
Отделка премиум-класса с использованием высококачественных материалов
Оборудованная кухня
По запросу
Остров Аль-Марьян представляет собой великолепный искусственный архипелаг в эмирате Рас-Аль-Хайма. Это выдающееся направление входит в число главных туристических достопримечательностей региона и славится своими живописными берегами, первоклассными курортными объектами и элитными жилыми комплексами. Расположенный вдоль побережья Персидского залива, остров Аль-Марьян открывает захватывающие морские панорамы. Архипелаг напоминает коралловое образование и включает в себя четыре характерных коралловых острова, соединенных главной транспортной артерией.
Жемчужина острова - безупречные пляжи с белым песком протяженностью 5,4 километра. Гости могут наслаждаться многочисленными видами отдыха на побережье, от релаксации и плавания до захватывающих водных развлечений, включая катание на водных мотоциклах и паддлбордах. Чистейшие воды Персидского залива создают идеальные условия для водного отдыха.
На острове Аль-Марьян расположено впечатляющее портфолио первоклассных гостиничных заведений, предлагающих исключительные удобства и услуги. Эти объекты обслуживают как отдыхающих, так и корпоративных гостей, предлагая разнообразные условия проживания на разный вкус и уровень инвестиций. Многочисленные островные отели и курорты отличаются великолепным архитектурным дизайном и предлагают эксклюзивный доступ к пляжам, бассейны, оздоровительные центры и изысканные рестораны.
Остров также служит местом развлечений и отдыха. Круглый год здесь регулярно проводятся различные мероприятия и праздники, в том числе музыкальные представления, пиротехнические шоу и культурные гуляния. На острове Аль-Марьян выделены зоны для занятий фитнесом на свежем воздухе и беговые дорожки, что способствует активному образу жизни жителей и гостей.


Студии, апартаменты с 1 и 2 спальнями






Готовы к новому дому? Отправьте нам запрос