



Buy property at the developer prices0%our commission
From the instant you arrive at the coastline, Côte d'Azur Monaco radiates an irresistible, vibrant atmosphere that captivates completely. Anticipate spectacular terraces, atmospheric rainy streets, sweeping ocean vistas, and exhilarating experiences.
Property owners will enjoy exclusive Beach Club privileges and may choose to utilize the yacht and boat anchorage services. The expansive azure swimming pool, floating platforms, the iconic Raining Street, snorkeling adventures among coral reefs and diverse marine ecosystems, plus numerous genuine Mediterranean culinary experiences await your discovery.
Secure your residence at Côte d'Azur Monaco, an extraordinary luxury oceanfront destination offering assured investment returns. This represents your elite Dubai vacation property for annual retreats while generating dependable rental revenue. Experience complete peace of mind with the Heart of Europe team's effortless, fully-automated ownership services.
Thoughtful architectural planning has maximized outdoor terraces and open-concept layouts, allowing residents to immerse themselves in Dubai's spectacular skyline. The breathtaking interior aesthetics, rooted in contemporary European design principles, create sumptuous living environments that epitomize elegance and refinement.
The development of Côte d'Azur Monaco has incorporated traditional Feng Shui principles throughout its design, construction, and landscape architecture.
Yes
The World Islands represents an extraordinary artificial archipelago positioned along Dubai's coastline in the United Arab Emirates. This visionary project features an assembly of private islands configured to mirror the world's continents, with each island embodying distinct countries and regions. These islands deliver unmatched luxury and exclusivity, establishing themselves as the ultimate expression of prestige and magnificence.
Each island within The World maintains strict privacy and exclusivity standards, delivering sophisticated sanctuaries for both residents and distinguished guests. The development encompasses diverse premium residential choices, featuring sumptuous villas, palatial homes, and exclusive private compounds. These exceptional properties showcase premium amenities, breathtaking Arabian Gulf panoramas, and direct access to untouched shorelines, delivering an incomparable residential lifestyle.
Beyond residential opportunities, The World Islands encompasses premium resort destinations, intimate luxury hotels, and sophisticated entertainment venues. Both residents and visitors can savor exceptional culinary establishments, enjoy rejuvenating spa services, and participate in extensive aquatic sports and recreational pursuits. These islands create an isolated haven where exclusivity, serenity, and luxury seamlessly unite.


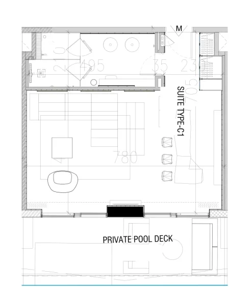
Hotel Monaco includes Studio & 1 bedroom apartments











Ready for your new home? Send us your inquiry