




Buy property at the developer prices0%our commission
One by Binghatti stands as an exceptional opportunity in Business Bay, presenting a distinctive array of benefits:
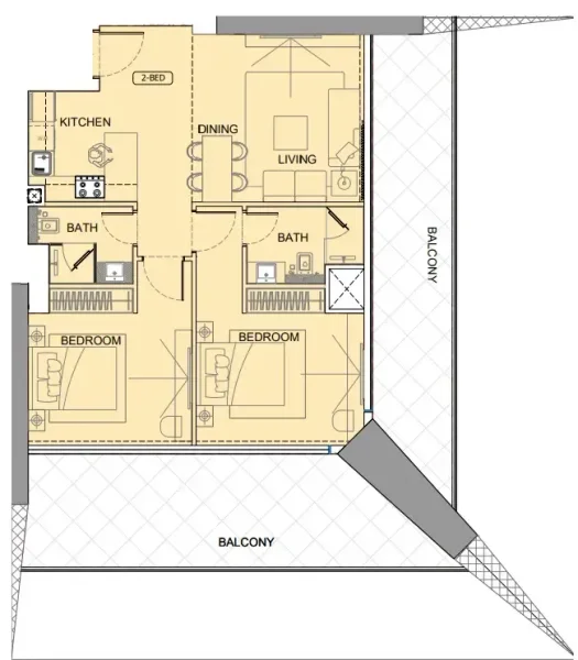
One by Binghatti Business Bay presents a diverse selection of properties for sale through Binghatti Developers. Every residence is thoughtfully designed to deliver expansive and comfortable living spaces, distinguished by contemporary interiors and superior-grade finishes.
One by Binghatti employs cutting-edge construction methodologies and innovative architectural concepts. The structure showcases a distinctive exterior featuring elaborately crafted balconies that provide seclusion while maximizing natural illumination and air circulation. Interior spaces are carefully designed with modern fixtures, premium materials, and refined finishes. Culinary spaces feature cutting-edge appliances and streamlined cabinetry, merging practicality with elegance.
Residents of One by Binghatti Business Bay enjoy access to an extensive array of amenities crafted to elevate their daily experience. These encompass a comprehensively outfitted fitness center for health-conscious residents and designated barbecue spaces. Furthermore, One by Binghatti delivers round-the-clock security and concierge services for protection and ease, alongside protected parking accommodations.
Modern finishing with high-quality materials
Fully equipped
No
Positioned in Business Bay, One by Binghatti enjoys a strategic location offering outstanding connectivity throughout Dubai's major districts. The development sits mere minutes from Downtown Dubai, Dubai Mall, and the legendary Burj Khalifa. Business Bay Metro Station lies within walking distance, providing seamless access to the city's comprehensive public transportation system. Prime destinations include Dubai International Airport (roughly 20 minutes by vehicle), DIFC (within 7 minutes), World Trade Centre (10 minutes), and Safa Park (5 minutes). The vicinity boasts abundant dining, retail, and entertainment choices, featuring upscale restaurants, premium shopping destinations, and dynamic nightlife establishments.
Despite its name suggesting otherwise, Business Bay extends far beyond corporate offices and commercial buildings. This dynamic district encompasses luxury hotel towers, exceptional dining establishments, and outstanding residential developments. The community is renowned for its sophisticated atmosphere and cutting-edge amenities that embrace the latest innovations. Life here moves at an energetic pace. Business Bay borders Downtown Dubai's southern edge and regularly hosts engaging events that maintain the area's vibrant character. From music festivals to Mother's Day festivities, New Year's celebrations, and numerous other gatherings, the lifestyle Business Bay delivers offers considerable advantages.
Prestigious international schools, medical facilities, supermarkets, banking institutions, and financial centers are located just minutes from your doorstep. This location effortlessly enhances your living standards and lifestyle through convenient and accessible amenities in close proximity. Discover sanctuary in this exceptional destination brimming with elements of pleasure, achievement, and entertainment.


Studio, 1, 2, 3 bedroom apartments & 3 bedroom villa & 4 bedroom penthouses







Ready for your new home? Send us your inquiry